Haus zum Kauf in Mülheim an der Ruhr
Denkmalschutz in Heißen-Fulerum, mit Nähe zu Essen-Haarzopf

reserviert

Beschreibung

Dieses 4-Parteienhaus befindet sich in der Siedlung "Heimaterde" von Mülheim a.d. Ruhr, mit Nähe zu Essen-Haarzopf. Erbaut wurde das Haus um 1937 auf einem rund 375 m² großen Grundstück. Seit 2009 haben hier umfassende Umbauarbeiten stattgefunden.
Von den 4 Wohneinheiten sind die beiden kleinen Apartments im Dachgeschoss aktuell nicht bewohnt.

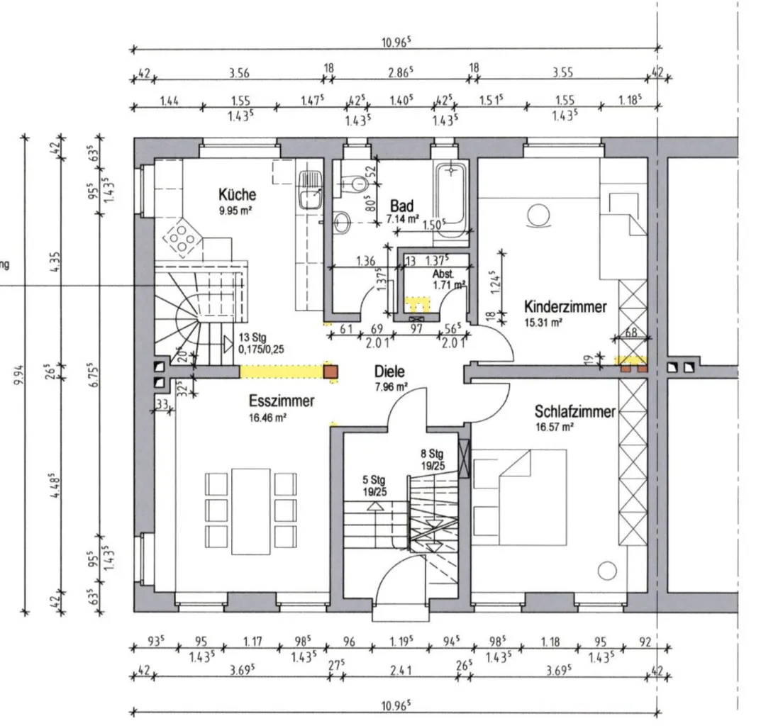
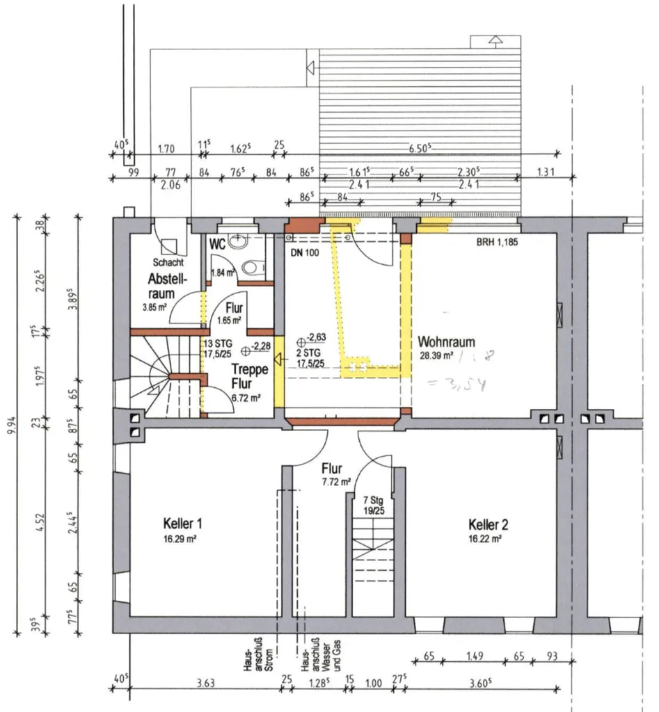
Das Erdgeschoss mit ca. 114 m² verfügt über eine Diele, Esszimmer, Küche, Abstellraum, zwei Schlafräume sowie ein Bad. 2010 wurde die Wohnung um ein Wohnzimmer im Kellergeschoss erweitert. Von hier aus haben Sie Zugang auf die Terrasse und in den Garten.

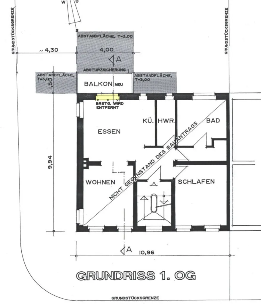
Die Obergeschosswohnung mit ca. 79 m² wurde 2024 umfassend modernisiert. Hier sind eine Diele, Wohnzimmer, offene Küche mit Essbereich, ein Schlafzimmer sowie ein Tageslichtbad mit Dusche angeordnet. Ein Balkon ist ebenfalls vorhanden.

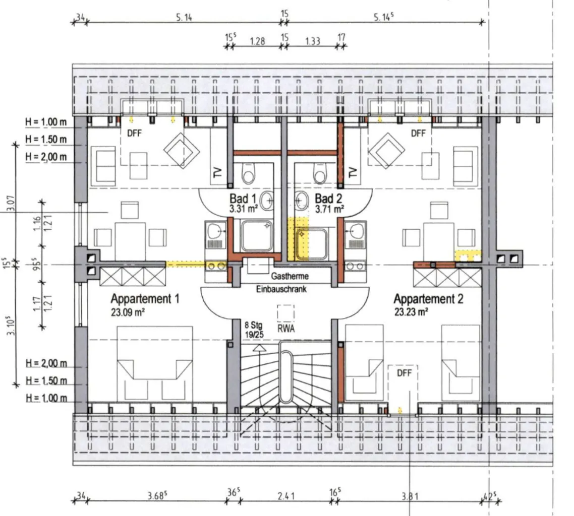
Im Dachgeschoss befinden sich zwei Apartments mit einer Wohnfläche von insgesamt rd. 53 m². Diese verfügen je über einen 2-geteilten Raum mit Schlafbereich, Wohnbereich und einer Kochgelegenheit. Beiden Apartments ist jeweils ein Duschbad zugeordnet.

Das gesamte Gebäude ist unterkellert. Eine Garage oder Stellplätze sind nicht zugehörig. Kostenfreie öffentliche Stellplätze stehen jedoch in ausreichender Zahl vor dem Haus zur Verfügung.

Ein Gebäude mit einer Vielfalt an unterschiedlichen Nutzungsmöglichkeiten.

Ausstattung

- 4 Wohneinheiten (EG/UG, OG, DG-2 Apartments)
- keine Garage oder Stellplätze vorhanden
- Keller
- Garten
- Terrasse
- Balkon (nicht in der angegebenen Wfl. enthalten)

Lage

Diese Immobilie befindet sich in einer zentral gelegenen Wohngegend von Mülheim an der Ruhr, mit Nähe zu Essen-Haarzopf. Mülheim, eine Stadt mit hoher Lebensqualität im Herzen des Ruhrgebiets. Die Lage überzeugt durch eine ausgezeichnete Anbindung an den öffentlichen Nahverkehr sowie eine schnelle Erreichbarkeit der Autobahnen A40 und A52. So lassen sich die Innenstädte von Essen und Duisburg in kurzer Zeit erreichen, ebenso wie der internationale Flughafen Düsseldorf.

Die Umgebung bietet eine gelungene Mischung aus urbanem Leben und naturnaher Erholung. Einkaufsmöglichkeiten für den täglichen Bedarf, Schulen, Kindergärten sowie Cafés und Restaurants befinden sich in unmittelbarer Nähe und sind bequem zu Fuß erreichbar. Auch kulturelle Angebote und Freizeiteinrichtungen sind schnell erreichbar.

In wenigen Minuten gelangt man zu mehreren Grünflächen und Naherholungsgebieten, die zu Spaziergängen, sportlichen Aktivitäten oder einfach zum Entspannen im Grünen einladen. Die Kombination aus städtischer Infrastruktur, guter Verkehrsanbindung und naturnahem Umfeld macht diesen Standort besonders attraktiv – sowohl zur Eigennutzung als auch als Kapitalanlage.

Der öffentliche Nahverkehr ist ebenfalls fußläufig erreichbar.

Sonstiges

Ich weise darauf hin, dass die Haftung hinsichtlich der inhaltlichen Richtigkeit der übermittelten Daten des Kaufobjekts auf grobe Fahrlässigkeit oder vorsätzliches Handeln beschränkt ist, da alle Angaben auf Informationen des Eigentümers/Verkäufers beruhen, oder nach bestem Wissen und Gewissen ermittelt wurden.

Bitte beachten Sie, dass bei großem Interesse und mehreren Angeboten die Zuschlagserteilung im Rahmen eines Angebotsverfahrens erfolgt.

Vereinbaren Sie einen unverbindlichen Besichtigungstermin. Wir freuen uns auf Ihren Anruf unter: 02831-9104944 oder E-Mail: info@beerden-immobilien.de

Bitte haben Sie Verständnis dafür, dass wir nur Kontaktanfragen mit vollständiger Angabe der Anschrift und Telefonnummer bearbeiten können.

Ansprechpartner

Mario Beerden

Telefon: +49 2831 9104944
Telefax: +49 2831 9104943

info@beerden-immobilien.de

Kontakt aufnehmen

Haus zum Kauf

Kaufpreis 419.000 €
Adresse 45472 Mülheim an der Ruhr
Wohnfläche ca. 245,94 m²
Zimmer 9
Grundstücksfläche ca. 375 m²
Objekt-Nr. 6005#p8Z5jr

Käuferprovision

3,57 %

Energiebedarfsausweis

Endenergiebedarf 220,20 kWh/(m²*a)
Energieverbrauch inkl. Warmwasser Nein
Befeuerungsart Gas
Wesentlicher Energieträger Erdgas leicht
Baujahr (Energieausweis) 1937
Energieeffizienzklasse G
Gültig bis 25.06.2035
Energieausweis 2014

0200400+

Ausstattung

Als Ferienimmobilie geeignet
Anzahl Badezimmer 4
Anzahl Balkone 1
Anzahl separate WCs 1
Anzahl Terrassen 1
Anzahl Zimmer 9
Bad mit Dusche, Fenster
Barrierefrei
Baujahr 1937
Bauweise Massiv
Befeuerungsart Gas
Denkmalschutz
Kamin
Provisionspflichtig
Sauna
Seniorengerecht
Swimmingpool
Unterkellert
verfügbar ab sofort
Vermietet
Wintergarten
Zustand modernisiert

Erfolg! Vielen Dank für Ihre Bewertung.

Fehler! Bitte füllen Sie alle Felder aus.