Haus zum Kauf in Geldern
Neuwertig mit Blick über die Felder

verkauft

Beschreibung

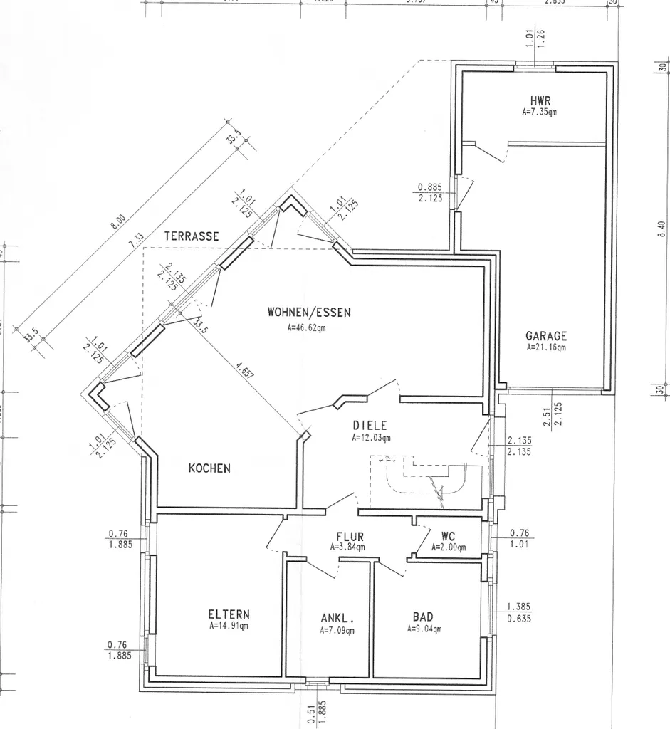
Dieses großzügige und freistehende Einfamilienhaus liegt am Ende einer Sackgasse, am Rande von Feldern. Die Wohnlage ist ruhig und dörflich geprägt. Das Gebäude mit ca. 178 qm Wohnfläche wurde 2008 auf einem Grundstück von ca. 500 qm massiv gebaut.
Über eine großzügige Diele gelangt man in das offene und lichtdurchflutete Wohn-/ Esszimmer mit integriertem Kochbereich. Terrasse und Garten können von hier aus betreten werden. Hier kann man in Ruhe, mit Blick auf Felder den Feierabend genießen. Abgerundet wird das Erdgeschoss durch ein Gäste-Wc, einen kleinen Abstellraum, ein Tageslichtbad mit Dusche und Wanne, ein Ankleideraum sowie ein Schlafzimmer.
Genügend Raum findet man auch im Obergeschoss. Hier sind die Räume aktuell im Stil einer integrierten Wohnung angeordnet. Ca. 75 qm verteilen sich hier auf ein Wohnzimmer (oder Schlafzimmer), 2 weitere Schlafzimmer, ein Hauswirtschaftsraum, ein WC mit Dusche und ein größeres Bad mit Wanne. Über eines der beiden Schlafzimmer gelangt man in den Spitzboden, der derzeit als Abstellfläche genutzt wird.
Dem Gebäude ist eine Garage zugeordnet, die man auch vom Garten aus, betreten kann.

Eine solide und fast neuwertige Immobilie, mit allen Vorzügen eines großen freistehenden Hauses, wo sowohl eine Nutzung als Ein- oder Zweifamilienhaus denkbar ist.

Ausstattung

- Kamin
- Spitzboden
- Garage + Außenstellplatz
- Garten mit großer Terrasse
- 3 Tageslichtbäder
- kein Keller
- Luft-Wärmepumpe

Lage

Kapellen ist ein Nebenort der Stadt Geldern. Die Innenstadt von Geldern oder auch Sonsbeck sind in ca. 10 Autominuten erreichbar. In diesen Städten sind weiterführende Schulen, Behörden sowie alle Dinge des täglichen Bedarfs vorhanden.
Der Ortskern von Kapellen ist fußläufig erreichbar. Ein kleines Lebensmittelgeschäft, Apotheke, Ärzte, Kindergarten, Grundschule, Bäcker, Imbiss, können sie ebenfalls zu Fuß erreichen.
In ca. 10 Autominuten gelangt man zur Autobahnauffahrt Sonsbeck (A 57). Somit ist auch die Verkehrsanbindung ins Ruhrgebiet mit den Städten Duisburg und Düsseldorf schnell erreichbar, als auch die Niederlande.

Sonstiges

Vereinbaren Sie einen unverbindlichen Besichtigungstermin. Wir freuen uns auf Ihren Anruf unter: 02831-9104044 oder E-Mail an: info@beerden-immobilien.de

Ich weise darauf hin, dass die Haftung hinsichtlich der inhaltlichen Richtigkeit der übermittelten Daten des Objektes auf grobe Fahrlässigkeit oder vorsätzliches Handeln beschränkt ist, da alle Angaben auf Informationen des Eigentümers beruhen oder nach bestem Wissen und Gewissen ermittelt wurden.

Ansprechpartner

Mario Beerden

Telefon: +49 2831 9104944
Telefax: +49 2831 9104943

info@beerden-immobilien.de

Kontakt aufnehmen

Haus zum Kauf

Kaufpreis 450.000 €
Adresse 47608 Geldern
Wohnfläche ca. 178 m²
Zimmer 5
Grundstücksfläche ca. 500 m²
Objekt-Nr. 5788

Käuferprovision

3,57 %

Energieverbrauchsausweis

Endenergieverbrauch 71,80 kWh/(m²*a)
Energieverbrauch inkl. Warmwasser
Befeuerungsart Luft/Wasser-Wärmepumpe
Wesentlicher Energieträger Wärmepumpe
Baujahr (Energieausweis) 2008
Energieeffizienzklasse B
Gültig bis 05.05.2032
Energieausweis 2014

0200400+

Ausstattung

Anzahl Badezimmer 3
Anzahl Schlafzimmer 4
Anzahl Terrassen 1
Anzahl Zimmer 5
Barrierefrei
Baujahr 2008
Bauweise Massiv
Befeuerungsart Luft/Wasser-Wärmepumpe
Gäste-WC
Kamin
Provisionspflichtig
Stellplatzart Garage
Vermietet
Zustand neuwertig

Erfolg! Vielen Dank für Ihre Bewertung.

Fehler! Bitte füllen Sie alle Felder aus.